HD7X41X型蓄能器式液控緩閉止回蝶閥PN6~PN16
液壓系統電磁換向閥控制特征一般為正作為型,既:電磁閥得電蝶閥門閥、失電蝶閥關閥;反之則為反作用型,即電磁閥失電蝶閥開閥、得電蝶閥關閥。常規配套電磁換向閥為正作用型,采用煩作用型應在訂貨時說明!
產品說明
一、HD7X41X蓄能器式液控緩閉止回蝶閥特點說明
1、靠兩個蓄能器蓄能,無外來能源時可自動關閥。
2、密封可靠、流阻系數小。
3、采用PLC智能控制系統,可實現文本、觸摸屏等多種人性化操作界面。
4、可以實現遠程、本地控制。
5.能按預定程序實現與其他管路設備聯動操作。
6.具有快、慢可調的關閉功能。
7.具有截止、止回功能。
8.關閉時能實現緩閉功能,有效消除水錘危害,保護水泵及網管系統的安全。
二、按照控制系統則分為普通蓄能器式(X)和蓄能器式鎖定型(XS)
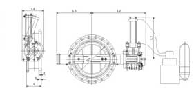
1、主要由閥門本體、傳動機構、液壓站、電控箱等四部分組成
2、閥門本體由閥體、碟板、閥軸、密封組件等零件組成。
3、傳動機構主要由液壓缸、搖臂、支撐側板等連接、傳動件組成,是液壓動力開、關閥門的主要執行機構。
4、液壓站包括油泵機組、手動泵、蓄能器、電磁閥、溢流閥、流量控制閥、截止閥、液壓集成塊、油箱等零部件。
5、手動泵用于系統調試和特殊工況下的閥門啟閉。
6.流量控制閥用于開閥時間調節。
7.傳動液壓缸設有快關時間調節閥、慢關時間調節閥和快、慢關角度調節。
8.系統中,兩個蓄能器互為備用,為閥門啟閉提供主動力源。
9.閥軸采用長、短軸結構均可。
10.一般采用臥式布置;也可根據用戶要求采用立式布置。
11.液壓站、電控箱與閥門本體可以是整體安裝,也可以分開安裝。用戶未作特殊說明時為整體式裝。采用立式布置時均為分體式安裝。
12.液壓系統電磁換向閥控制特征一般為正作為型,既:電磁閥得電蝶閥門閥、失電蝶閥關閥;反之則為反作用型,即電磁閥失電蝶閥開閥、得電蝶閥關閥。常規配套電磁換向閥為正作用型,采用煩作用型應在訂貨時說明!
結構連接尺寸
HD7X41X 型 蓄能器式液控緩閉止回蝶閥PN6~PN16連接尺寸(mm)
| DN | PN | L | L1 | L2 | L3 | L4 | 法蘭連接尺寸 |
| 400 | 0.6 | 216 | 556 | 1449 | 320 | 440 | GB/T17241 GB/T9113 |
| 1.0 | 216 | 556 | 1449 | 330 | 440 | ||
| 1.6 | 216 | 556 | 1449 | 345 | 440 | ||
| 450 | 0.6 | 222 | 556 | 1449 | 370 | 440 | |
| 1.0 | 222 | 556 | 1449 | 380 | 440 | ||
| 1.6 | 222 | 580 | 1449 | 395 | 490 | ||
| 500 | 0.6 | 229 | 580 | 1449 | 400 | 440 | |
| 1.0 | 229 | 580 | 1449 | 410 | 490 | ||
| 1.6 | 229 | 580 | 1449 | 425 | 490 | ||
| 600 | 0.6 | 267 | 580 | 1449 | 440 | 490 | |
| 1.0 | 267 | 580 | 1449 | 460 | 490 | ||
| 1.6 | 267 | 625 | 1820 | 470 | 490 | ||
| 700 | 0.6 | 292 | 625 | 1449 | 436 | 490 | |
| 1.0 | 292 | 625 | 1820 | 550 | 545 | ||
| 1.6 | 292 | 625 | 1820 | 570 | 545 | ||
| 800 | 0.6 | 318 | 625 | 1820 | 625 | 490 | |
| 1.0 | 318 | 625 | 1820 | 640 | 545 | ||
| 1.6 | 318 | 625 | 1820 | 660 | 545 | ||
| 900 | 0.6 | 330 | 625 | 1820 | 700 | 545 | |
| 1.0 | 330 | 625 | 1820 | 710 | 545 | ||
| 1.6 | 330 | 675 | 1820 | 725 | 610 | ||
| 1000 | 0.6 | 410 | 625 | 1820 | 760 | 610 | |
| 1.0 | 410 | 675 | 1820 | 770 | 610 | ||
| 1.6 | 410 | 675 | 2180 | 790 | 610 | ||
| 1200 | 0.6 | 470 | 675 | 1820 | 875 | 610 | |
| 1.0 | 470 | 675 | 2180 | 890 | 610 | ||
| 1.6 | 470 | 729 | 2180 | 915 | 720 | ||
| 1400 | 0.6 | 530 | 729 | 2180 | 1000 | 720 | |
| 1.0 | 530 | 729 | 2180 | 1020 | 720 | ||
| 1.6 | 530 | 781 | 2180 | 1045 | 960 | ||
| 1600 | 0.6 | 600 | 781 | 2180 | 1120 | 720 | |
| 1.0 | 600 | 781 | 2180 | 1140 | 960 |
尺寸圖

安裝注事事項
1、安裝前應核對蝶閥規格、壓力、溫度、耐腐性是否滿足使用要求。 應檢查各零部件是否損壞或松動。
2、本蝶閥可安裝在任意角度的管道上,應關閉安裝為宜;焊接管道法蘭時應將閥門密封口用板擋住以防止顆粒、雜物挫傷密封面,焊后取下 閥門,對閥門密封面及管道內腔進行清潔,然后再安裝固定閥門。
3、安裝時請注意閥門關閉狀態承壓方向。
4、安裝前應將密封面(兩端密封面、蝶板密封面、閥座密封面)徹底擦干凈,去掉灰塵和污物。
5、安裝前應空試蝶閥,啟閉應靈活,啟閉位置與指針指示位置相符合。
6、手動操作順時針為關,逆時針為開,指針指示到位后不準再加力啟閉閥門。
7、閥門做壓力試驗時,不準用單法蘭進行安裝試壓,必須采用雙法蘭安裝試壓。其試驗壓力應符合GB/T13927-92標準規定。
8、緊固螺栓時應對稱交替進行緊固,不準依次單獨緊固。
9、限位螺釘出廠前,已經調好,不準輕易調整。若配置驅動裝置為電動、氣動請閱配套驅動裝置說明書。
10、電動蝶閥出廠時已將控制機構的啟閉行程調好。為防止電源接通時方向搞錯,用戶在第一次接通電源前要先手動開啟至半開位置,再按點動開關,檢查指示盤方向與閥門開啟方向一致即可。
11、發現閥門啟閉失常應查明原因進行修理和排除,防止用加力方法開關閥門,造成閥門的損壞。
|
||||||||||||||||||||||||
![]() |
||||||||||||||||||||||||
| ||||||||||||||||||||||||










